

leestijd: 2 minuten
Analyse Verblijfskwaliteit
In opdracht van het Canisius College in Nijmegen is een project gestart om de verblijfskwaliteit van de bestaande entree en garderobe te verbeteren. De belangrijkste klachten waren de kille en lawaaiige ruimte, personeel had veel moeite met het houden van toezicht en het handhaven van de schoolregels en het bestuur koestert de wens dat de entree meer een visitekaartje van de school zou worden. In samenwerking met het Canisius College is er een grondige analyse uitgevoerd van de klachten, zijn er interviews uitgevoerd met personeel en scholieren en is er een ruimtelijke belevingsanalyse uitgevoerd.
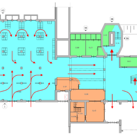
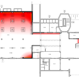
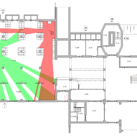
De analyse laat zien dat er een mismatch is ontstaan tussen de oorspronkelijke functie van de ruimten en het daadwerkelijke gebruik door scholieren en personeel. Veel scholieren vonden de hoge ‘harde’ aula te groot en onpersoonlijk en zochten de hoeken van de kleinere garderobe op om de pauze door te brengen.
Investeringsscenario’s
De resultaten van de analyse zijn verwerkt in drie investeringsscenario’s waarbij er in de opvolgende scenario’s steeds meer en grotere ingrepen gedaan worden. Het doel is om inzicht te verschaffen in de noodzakelijke maatregelen, de mogelijkheden en de bijbehorende kosten.
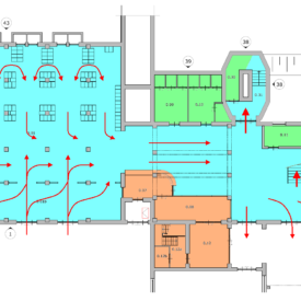
Scenario 1 – low budget
Het eerste scenario is gericht op minimale ingrepen en een relatief klein budget. De genomen maatregelen omvatten een nieuwe vloer en een nieuw akoestisch plafond, gerenoveerde kluisjes en nieuw meubilair bij de entree. Het patroon in de vloer wijst de bezoeker de weg naar de receptie en de aula. De kleuren zijn onafhankelijk van geslacht, waardoor zowel jongens als meisjes zich ermee kunnen identificeren.
Scenario 2 – medium budget
Ten opzichte van het eerste scenario zijn er nieuwe kluisjesblokken van 3 kluisjes hoog toegepast, zijn akoestische baffles opgenomen, en is er plaats gemaakt voor een aparte wachtruimte voor bezoekers. Vanwege de lagere kluisjes kunnen surveillanten erover heen kijken en zo beter toezicht houden. Door de toepassing van schuine kappen op de kluisjesblokken kan afval er niet op blijven liggen en wordt het eenvoudiger om de ruimte schoon te houden.
Scenario 3 – high budget
Hier wordt de grens van de mogelijkheden opgezocht. Er wordt een geheel nieuwe balie rechts van de entree voorzien en er wordt een stalen geluidsabsorberend plafond toegepast. Het stalen plafond biedt een sterkere uitstraling dan een gipsen plafond. Het verplaatsen van de balie voorziet in een betere welkom en een beter toezicht op de entree en de ruimte.





















