

The devil is in the details: door in alle ruimten dezelfde elementen in andere vormen te gebruiken, worden alle ruimten met elkaar verbonden.
De Experimenteren
In 2018 ben ik begonnen mijn eigen appartement vorm te geven en ik heb van de gelegenheid gebruikt gemaakt om te experimenteren en allerlei verschillende dingen uit te proberen. Het resultaat is transformatie van een jaren ’60 appartement naar een lichte en moderne woning die vooral ’s avonds en op mooie voor- en najaarsdagen verrast!
Grote Ingrepen
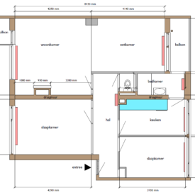
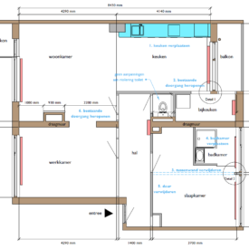
De oorspronkelijke indeling van het jaren ’60 appartement bestond vooral uit kamers die onderling weinig relatie hadden en kenmerkte zich door een onlogische hiërarchie en routing. De grootste ingrepen zijn daarom bedoeld om meer samenhang en licht in de leefruimten te brengen en de plattegrond te openen.
Door de keuken uit zijn kleine kamertje naar de woonkamer te brengen en de badkamer in de slaapkamer onder te brengen, ontstaat er een lichte en open leefruimte met een directe verbinding naar het balkon op het oosten. De grote, open keuken is vervolgens van alle gemakken voorzien en bevat dusdanig veel opbergruimte dat er elders in de woning ruimte vrijkomt.
De slaapkamer en de oorspronkelijke keuken kunnen nu samengevoegd worden, tot een grote slaapkamer met inloopkast en een ensuite badkamer. De inrichting van de badkamer is zo gekozen dat deze in de toekomst tot aparte ruimte omgebouwd kan worden, door de oude wand eenvoudigweg op dezelfde plek terug te plaatsen. Zo kan van dit ruime tweepersoons appartement een kleine gezinswoning gemaakt worden.
Doordat de badkamer verplaatst werd naar de andere zijde van de wand, kwam er in de oorspronkelijke badkamer ruimte vrij om een bijkeuken te realiseren en is het balkon op het oosten direct vanuit de keuken te bereiken zonder eerst door de badkamer te moeten.
Met deze ingrepen ontstaat een tweepersoons appartement met een grote leefruimte, grote hoofdslaapkamer en een grote aparte werk- of hobbykamer.
Inrichting
De woonkamer is open en luchtig ingericht in een op het Scandinvisch geïnspireerde stijl. De radiatorombouw is voorzien van een verdiepte vensterbak van blank beukenhout. Door vervolgens met verschillende soorten licht te spelen ontstaat en dynamisch en uniek geheel.
Mijn zelfopgelegde uitdaging was om de inrichting en het meubilair met minimale middelen binnen dezelfde stijl te ontwerpen.
De hangkast en het TV-meubel in de woonkamer bestaan daarom uit basiskast van Ikea is afgewerkt met hetzelfde beukenhout als de radiatorombouw.
Zo kon ook de al bestaande schouw eenvoudig opgenomen worden in het totaal ontwerp van de televisiewand.
Voor het kleine toilet (ca. 90 x 90cm) heb ik een bladzijde geleend uit het boek voor Tiny-Houses: het toilet met ingebouwd fonteintje hergebruikt het water waarmee men de handen wast en dat bespaart naast water ook veel ruimte. Zo is van een zeer klein toilet toch een functioneel en duurzaam toilet gemaakt.
Details
The devil is in the details: door in alle ruimten dezelfde elementen in andere vormen te gebruiken, ontstaat er een geheel en worden alle ruimten met elkaar verbonden.
Door de gehele woning zijn plafondplinten aangebracht welke alle ruimten binnen de woning met elkaar verbinden. Deze plinten herbergen ook de verlichting en de gordijnrails en verbergen de opgebouwde CV-leidingen.
Zo komt hetzelfde blanke beukenhout dat gebruikt is in de woonkamer, door de gehele woning terug in accenten, zoals een koffie-kastje boven het aanrecht, de dagkantafwerking van de doorgang naar de bijkeuken of de afwerking van de kapstok.











